Продаж приміщення в центрі міста, район Сінного ринку, 620 кв.м
- 270 000$
- 270 000$
Деталі
Оновлення 18 Грудня, 2024 в 10:58 am-
№ 22117
-
Ціна 270 000$
-
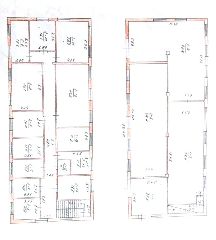
Площа 620 m²
-
Тип Офісне приміщення, Виробничі приміщення
-
Статус Продаж
Опис
Продаж нежитлового приміщення в центрі міста, район Сінного ринку, загальна площа 620 кв.м. Приміщення капітальне, збудоване з цегли, має два поверхи: перший поверх виробничий з висотою стелі 4 м, другий — офісний з висотою стелі 2,5 м. Обладнане котельнею з газовим та твердопаливним котлами, є система кондиціонування. Всі центральні комунікації підключені, потужність електропостачання — 30 кВт (3 категорія). Земельна ділянка обгороджена, має зручний заїзд, оформлений сервітут та розподіл земельної ділянки, є кадастровий номер.
Продаж можливий через переоформлення корпоративних прав або договір купівлі-продажу приміщення. Вартість складає 270 000$ без ПДВ, можливий торг. Дуже вигідна пропозиція як для інвестиції, так і для будь-якого бізнесу.
Адреса
Відкрити на Google Maps-
Адреса: Сінний ринок, вулиця Покровська, Житомир, Житомирська область, Україна
-
Місто: Житомир
-
Область: Житомирська область
-
Район: Центр
Контактна інформація
Переглянути оголошенняСхожі оголошення
Продаж комерційного приміщення, 600 кв.м., м. Баранівка
Баранівка, Житомирська область, Україна- №: 24432
- 600 m²
- 60 сот.
- Складські приміщення, Виробничі приміщення
Продаж фасадного комерційного приміщення, 120 кв.м, район Малинського ринку
вул. Малинська (Оптовий ринок), Житомир, Житомирська область, Україна- №: 24124
- 120 m²
- Торгові площі, Офісне приміщення, Об'єкт сфери послуг, Приміщення вільного призначення
Оренда нежитлового приміщення 670 м², район Корбутівки
Гідропарк, Житомир, Житомирська область, Україна- №: 24088
- 670 m²
- Офісне приміщення, Об'єкт сфери послуг, Готель, готельний комплекс, Приміщення вільного призначення
Продається приміщення 800 кв.м. у центрі Житомира, район майдану Короленка
майдан Короленка, Житомир, Житомирська область, Україна- №: 23758
- 800 m²
- 12 сот.
- Офісне приміщення, Об'єкт сфери послуг
Продається комерційне приміщення в центрі Житомира, по вулиці Київська, 56 м²
вулиця Київська, Житомир, Житомирська область, Україна- №: 23589
- 56 m²
- Торгові площі, Офісне приміщення, Об'єкт сфери послуг, Приміщення вільного призначення
Приміщення в центрі міста Житомир, вулиця Івана Мазепи, навпроти ЖК Сімейний, 347 м²
вулиця Івана Мазепи, Житомир, Житомирська область, Україна- №: 23342
- 347 m²
- Торгові площі, Офісне приміщення, Об'єкт сфери послуг, Приміщення вільного призначення
















































